Wohnumfeldgestaltung
LEISTUNGSBEREICHE
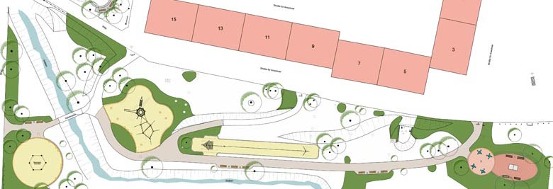
In Dresden-Klotzsche wurde das Wohnumfeld eines Zeilenbaus überplant.
Der Bestand sollte dabei weitestgehend erhalten bleiben. Demnach beinhal-
tete die Planungsaufgabe die Instandsetzung des Spielplatzes inklusive
Erneuerung von Flächeneinfassungen, Einbau individueller, identitäts-
stiftender und Austausch alter Spielgeräte, Entwicklung von Ruhebereichen
sowie die Neugestaltung eines Treffpunktes westlich des Wohngebäudes.
Planungszeitraum: April bis Juni 2007 | Bauausführung: 2007 |
Leistungsphasen: 2-6
Büro: Prugger Landschaftsarchitekten
PROJEKTE
